Skip To Content

7903 Ventnor

Margate, NJ 08402
  • $3,500
  • STATUS: Active
  • ON SITE: 30 Days
  • MLS #: 605475
UPDATED: 53 min ago
$3,500
  • 0
    BEDS
  • N/A
    ACRES
  • 0
    BATHS
  • 0
    1/2 BATHS
Neighborhood:
Type:
Commercial-Lease
County:
Area:

School Ratings & Info

Description

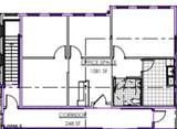
Position your business for success in the heart of Margate with this new construction professional office space. Designed with modern finishes and a clean, professional aesthetic, this space offers the perfect setting for a variety of professional uses. Clients and staff will appreciate the convenience of off-street parking, a rare and valuable amenity in such a prime location. Situated in the center of Margate’s thriving business district.



© 2026 South Jersey Shore Regional MLS. All rights reserved. IDX information is provided exclusively for consumers' personal, non-commercial use and may not be used for any purpose other than to identify prospective properties consumers may be interested in purchasing. Information is deemed reliable but is not guaranteed accurate by the MLS or Angie Lauren | 3DX. Properties marked with the Broker Reciprocity icon or thumbnail icon (a small house) are provided courtesy of the South Jersey Shore Regional MLS Broker Reciprocity Database. Data last updated 2026-04-10T07:49:53.41.
www.angielauren.com/homes/173926749
Print Image

7903 Ventnor Margate, NJ 08402

  • Price: $3,500
  • Status: Active
  • On Site: 30 Days
  • Updated: 53 min ago
  • MLS #: 605475
0
Beds
0
Baths
0
½ Baths
N/A
Acres
Neighborhood:
Margate City
County:
Atlantic
Area:
Margate City
Property Description
Position your business for success in the heart of Margate with this new construction professional office space. Designed with modern finishes and a clean, professional aesthetic, this space offers the perfect setting for a variety of professional uses. Clients and staff will appreciate the convenience of off-street parking, a rare and valuable amenity in such a prime location. Situated in the center of Margate’s thriving business district.
Exterior Features

Lot Dimensions x Waterfront YN No

Property Features

Approved Short Sale N/A Auction YN No Bank Owned Foreclosure No Lot Number 4 May Be Subject To Third Party Approval Short Sale No Tax Year 2025 Taxes 16106

South Jersey Shore Regional MLS logo Listing information © 2026 South Jersey Shore Regional MLS.
Listing provided courtesy of MARKETPLACE REALTY: .


© 2026 South Jersey Shore Regional MLS. All rights reserved. IDX information is provided exclusively for consumers' personal, non-commercial use and may not be used for any purpose other than to identify prospective properties consumers may be interested in purchasing. Information is deemed reliable but is not guaranteed accurate by the MLS or Angie Lauren | 3DX. Properties marked with the Broker Reciprocity icon or thumbnail icon (a small house) are provided courtesy of the South Jersey Shore Regional MLS Broker Reciprocity Database. Data last updated 2026-04-10T07:49:53.41.
 
https://bt-photos.global.ssl.fastly.net/sjersey/1280_boomver_1_605475-2.jpg https://bt-photos.global.ssl.fastly.net/sjersey/1280_boomver_1_605475-2.jpg
Logo
Angie Lauren | 3DX
810 Asbury Avenue
Ocean City NJ, 08226